










Liknande produkter
Top_corner_cap .jpg
Bottom_corner_cap.jpg
Short_metal_handle.jpg
Short_wooden_handle .jpg
Knob_handle.jpg
Long_wooden_handle.jpg
Square_handle.jpg
Cutout_handle.jpg
Installation_guide.pdf
Assembly_instructions_Vetro_Sauna_S54.pdf
Cube_knob_handle.jpg
Vetro S54
Bastu glasvägg med fönster på gångjärnssidan
Denna produkt lämpar sig väl för indelning av bastu-utrymmen. Dörren är oinramad och monteras genom att fästa gångjärnen direkt i sidofönstret intill samt i väggen under detta. Sidoglasen ger mera ljus samt skapar extra känsla av rymd i utrymmet.
Dörren går att vända 90 grader i bägge riktningar. Dörrens gångjärn är utrustade med justerbar centrering som strävar efter att returnera dörren till sin öppna samt stängda position
Överfönstren samt sidoglasen är försedda med profiler av rostfri stål. Profilfärgen beror på den valda ramfärgen. Alla profiler är kapade färdigt till exakta mått och behöver således inte kapas vid monteringen. För en slutförd finish samt för att förenkla monteringen utrustas profilerna med monteringsstycken.
Glasdörren monteras genom att fästa gångjärnen direkt i byggnadens vägg och i sidofönstret ovan om denna, samt genom att spänna fast gångjärnet ordentligt i glaset. Överfönstret monteras genom att skruva den rostfria stålprofilen i öppningens överkant. Alla stålprofiler levereras precisionsågade till exakt längd och förses med monteringsstycken för en perfekterad finish samt för att tillåta små justeringar. Överglaset limmas i stålprofilen. Från sidorna fästs överglaset med hjälp av beslag. Sidopanelerna monteras med hjälp av rostfria stålprofiler runt yttre kanten av glasen, i vilka glasen limmas. Ifall sidopanelen räcks ända ner till golvet, fästs panelen med golvbeslag som limmas i golvet. Gångjärnens skruvar behöver spännas pånytt efter ca en veckas användning, eftersom gånjärnen alltid söker sin plats samt kan flytta sig lite under de första värmeändringarna och användningsångerna. Återspänningen görs genom att spänna skruvarna som sitter mot glaset så spänt som möjligt. Kontrollering att återspänningen blir gjord bör skötas av slutanvändaren.
20 Vardagar
20 års garanti
Alla metallbeslag i produkten tillverkas av mässingslegering. Ytbehandlingsalternativen är Förkromad, Mässing och Svartmålad. Monteringsprofilernas färg motsvarar det valda ytbehandlingsalternativet och tillverkas av rostfri stål med link-/hörnbitar i motsvarande färg. Hantaget är beroende på handtagsvalet förkromad, mässingfärgad eller svart mässinglegering eller träfärdig al.
Produkten tillverkas av 8 mm tjockt härdat säkerhetsglas (EN 12150). Klar och rök är namnen på de släta och genomskinliga glasen.
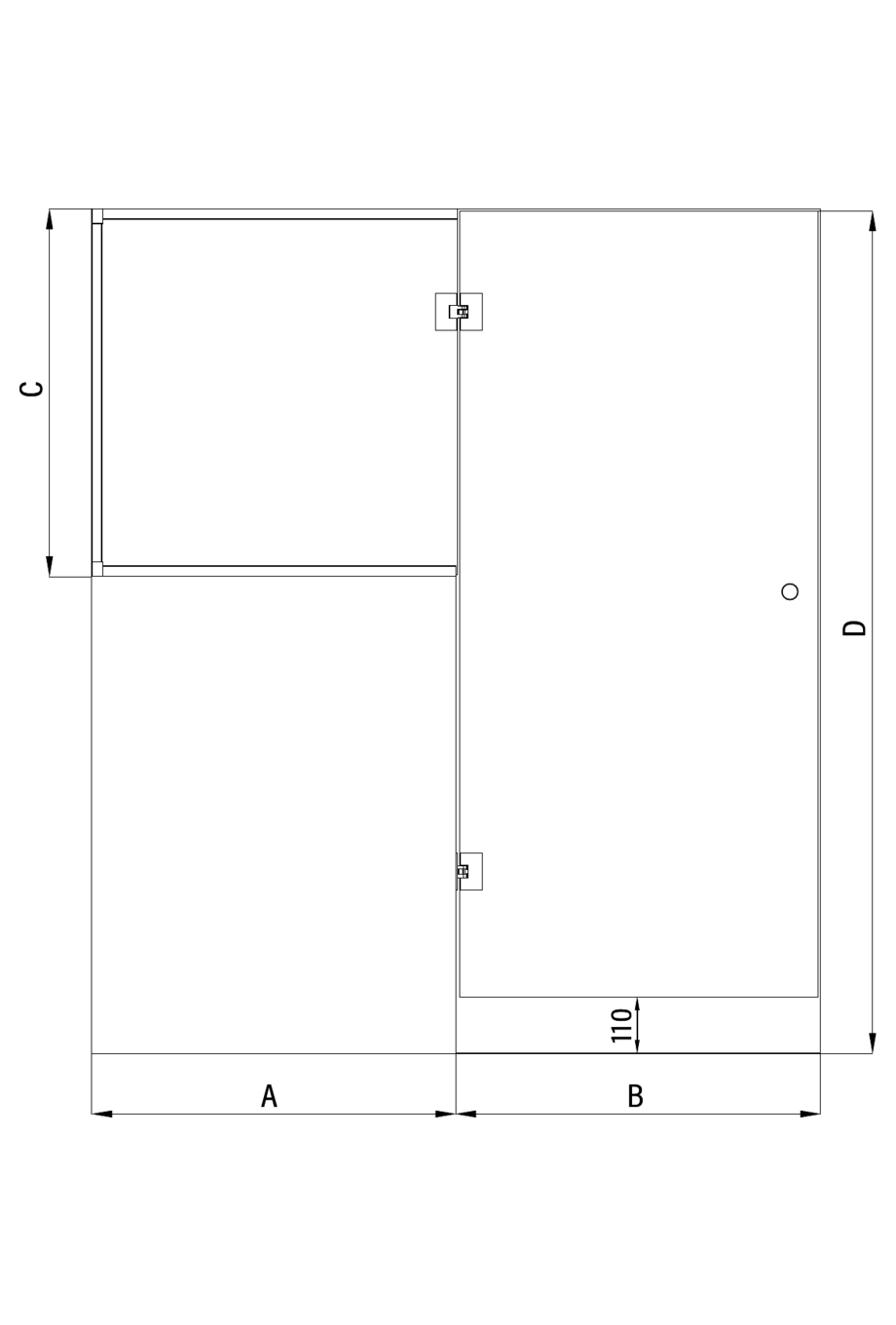
Dörrens storlek kan väljas bland standardmått(700/800/900 x 2000), eller den kan tillverkas enligt skräddarsydda mått; sidoglas tillverkas alltid enligt skräddarsydda mått. Vid val av dörrens storlek menar bredden monteringsöppningens bredd och höjden glasskivans höjd. Vid dimensionering av höjden för dörrens monteringsöppning lämnas på glasets överkant automatiskt 5 mm och på underkant 110 mm gångmån. Vid val av sidoglaset menas med bredden och höjden monteringsöppningens bredd och höjd. Monterings- och justeringsmånen inkluderas i dimensioneringen av sidoglasens glasskivor automatiskt. Mikäli oven koko ylittää 1,7m2 lisäsaranointi tarvitaan lisätuen saamiseksi.
Produkt storlek
Den valda produkten kan man montera i en öppning, vars totalbredd L1 är1700mm och totalhöjd L2 2000mm.:

Runt metallhandtag och kort metallhandtag tillverkas av förkromadmässingslegering. Det korta trähandtaget är av al. Av handtagsalternativlämpar sig det runda metallhandtaget och det korta trähandtaget även för användning i bastudörren. Ifall storleken av dörren överskrider 1,7m2, vänligen välj handtags alternativet med ett tilläggs gångjärn. Mikäli oven koko ylittää 1,7m2, valitse vedinmalli +lisäsarana vaihtoehdolla.
Produkt
Produktkod
Pris
1
Vetro S54
Produktkod
S54-21-00
Pris
0.00 €
2
Glasdörr
Förkromad/Klar=800 x 1885
Produktkod
160 21 0000
Pris
472.00 €
3
Glas
Förkromad/Klar=900 x 700
Produktkod
044 21 0000
Pris
220.00 €
4
Underhållsguide
=
Produktkod
059 RL MMMM
Pris
0.00 €
5
Installation instructions
=
Produktkod
8/25 6NRLM
Pris
0.00 €
6
Rund metalhandtag
Produktkod
883 21 0000
Pris
0.00 €
7
TOTALT
Produktkod
Pris
692.00 €
Den valda produkten kan man montera i en öppning, vars totalbredd L1 är1700mm och totalhöjd L2 2000mm.:
| EAN: |
|---|



